4638 Kristiansand
Vi har gleden av å presentere Sofiero 29, et rekkehus i 3 etasjer med hybel. Tegnet i felleskap av arkitekt Øyvind Flatnes og Knut Ove Kristiansen. Boligene ligger på en fin liten høyde og har sol fra morgen til kveld. Samtlige boliger bygges selveier tomt, og grenser til et felles tun med lekeplass.
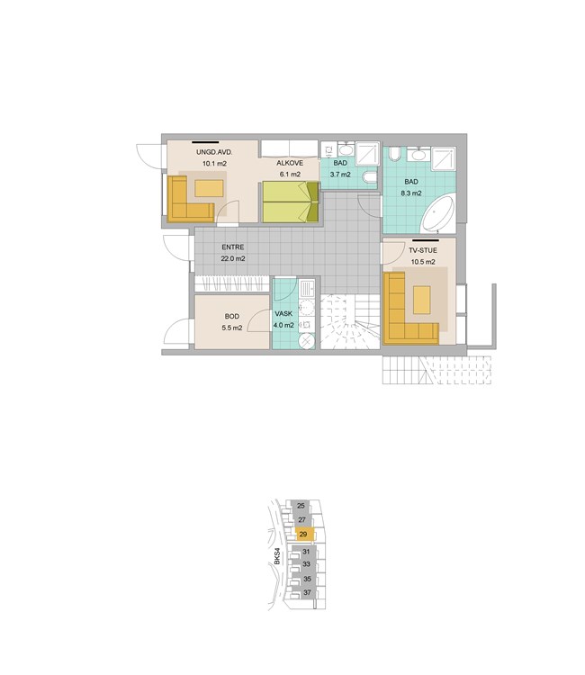
Dette er svært innholdsrike boliger, tegnet med øye for å best mulig utnytte tilgjengelig areal(BRA 200m2), samt uteplasser inne og ute tegnet med tanke på sol og opphold.
Vi er stolte av resultatet og gleder oss å ta fatt på dette nydelige prosjektet, beliggende midt mellom Langetjønn, Rundetjønn og Drangsvann. Snaue 200-300meter fra Høvågveien en liten kilometer fra Rona.
Nøkkelferdig leveranse inne og ute
På lik linje med selve boligen, gjøre vi uteareal ferdig. Se prospekt og utenomhus planer i prospekt for gode illustrasjoner på leveranser. Her leveres både belegningsstein, kantstein, gressarmering, plener, hekker, plattinger og så videre. Her kan du flytte rett inn uten å tenke på gjenstående arbeider.
Inne leveres boligene ferdig med vår velkjente standard. Vi søker å tilby en tidsriktig leveranse som ikke skal kreve at du bruker penger på oppkjøp. Prospekt vil gi deg god innsikt, men vi leverer selvsagt pipe og, belysning i alle rom, også mye downlights, utvendig belysning, god mengde kjøkken fra Strai kjøkken, fin 1-stav laminat på gulver, lekre bader med dusjvegger og nedsenket gulv, lydtiltak mot hybel, lekre eikedetaljer på fasade, vinduer med aluminiums beslag og mye mye mer! Be om prospekt og du vil lese til minste detalj.
Sjekk også prosjektets egen nettside: www.raadrangsvann.no
Oppstart, ferdigstillelse og betaling
Dersom boliger blir solgt ila oktober 2023, vil de kunne stå ferdig rett sensommeren 2024. Vi vil prioritere salg og bygging fortløpende. Ved inngåelse av kontrakt, vil overtakelsestidspunkt bli fastlåst til en eksakt dato for ferdigstillelse. Det gjør planleggingen din enkel og oversiktlig.
Det er ingen betaling før boligen er ferdigstilt. Med andre ord, kjøp bolig i høst, betal når den står ferdig sensommeren 2024. Her sparer du store penger, husk å fortelle banken din dette dersom du vurderer kjøp. Dette er et ganske enestående tilbud.
Be om en prat og visning av tomt
Kjørevei inn til tomtene er asfaltert, du kan med enkelhet kjøre helt frem. Du vet du er kommet riktig når du i midten av området ser et stort byggeplasskilt merket med Sofiero.
Samtlige tomter er merket med tomtenummer, er planert flate og husets hjørner er stukket ut av landmåler med markører. Tomteskiltet til hver tomt har egen qr-kode slik at du kan med enkelhet kan scanne dette med mobilen, og bli ledet rett til finn annonse med priser etc. Salgsansvarlig Kim Johansen er tilgjengelig for prat og visning på byggeplass, er bare ta kontakt for avtale.










