Sukkevannslia 6
4638 Kristiansand
4638 Kristiansand
Pris
8 250 000,-
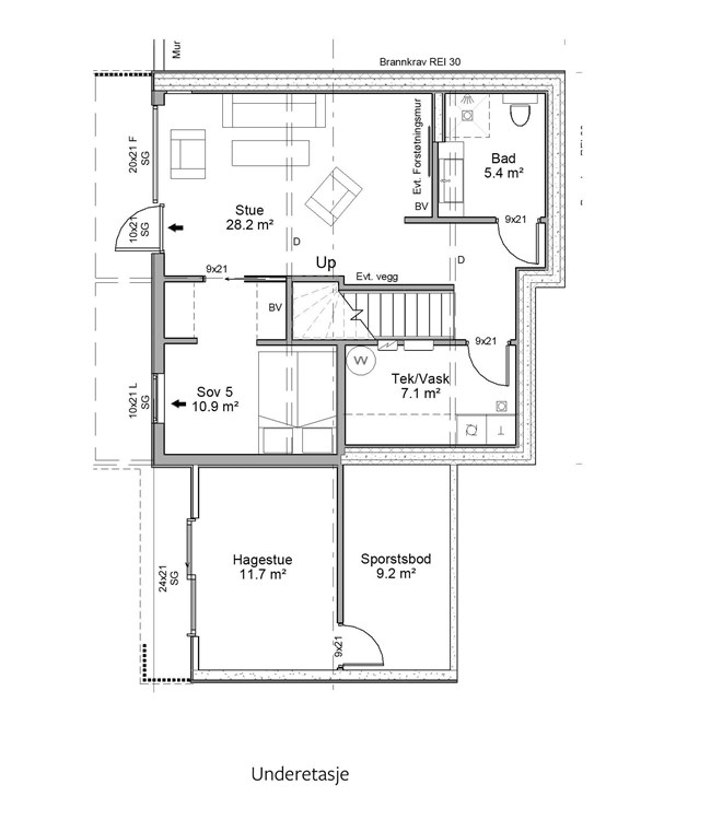
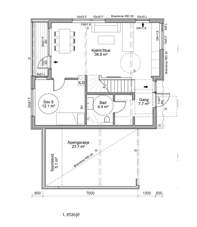
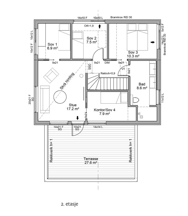
BRA
240 m²
Tomt
363 m²
Antall etasjer
3
Svært innholdsrik bolig, beliggende på solrik utsiktstomt. Boligen holder gjennomgående høy standard, med praktiske løsninger og tidsriktige fargevalg. Mulighet for praktikantdel mot tillegg. Sukkevannslia er snart ferdig utbygd, så dette er en av de siste mulighetene til å sikre seg en bolig i dette populære boligfeltet, i rolige og familievennlige omgivelser.
×


