4638 Kristiansand
VÅR SISTE ENEBOLIG PÅ SOFIERO!
Nå går det virkelig mot slutten, kun Sofiero 11 igjen!
(Bilder fra ferdig bolig i bilde karusell er fra akkurat lik tilsvarende ferdig bolig.)
Denne boligen står ikke tilbake for noen av de andre. Den er kun sistemann ut som blir bygget. Denne boligen rigges med en svært god leveranse. Trolig et aldri så lite "kupp". Svært gode planløsninger, veldig god beliggenhet og ikke minst ferdig bolig og ferdig hage er gode grunner til at vi nå snart er utsolgt.
- Boligen er innflyttingsklar om kun få måneder.
Nøkkelferdig leveranse inne og ute
På lik linje med selve boligen, gjør vi tomten ferdig. Her leveres både belegningsstein, kantstein, plener og hekker. Her kan du flytte rett inn uten å tenke på gjenstående arbeider.
Inne leveres boligene ferdig med vår velkjente standard. Vi søker å tilby en tidsriktig leveranse som ikke skal kreve at du bruker penger på dyre oppkjøp. Prospekt vil gi deg god innsikt, men vi leverer selvsagt parkett gulver, pipe og peis, belysning i alle rom(mye downligts), utvendig belysning, kjøkken fra Strai kjøkken med hvitevarer både til hoved kjøkken og hybel kjøkken!, lekre bader med dusj vegger og nedsenket gulv, badekar leveres til hoved bad, lyd tiltak mot hybel, lekre detaljer på fasade, vinduer med aluminiums beslag og mye mer! Anbefaler å ta kontakt for mer informasjon.
Stikkord:
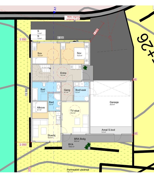
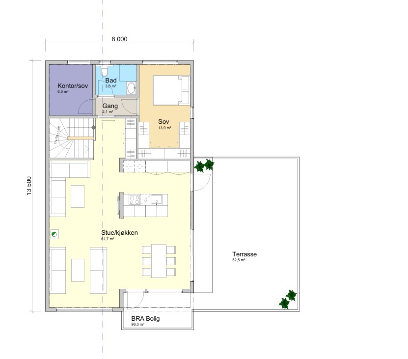
- Stor bolig, BRA 228m2.
- Stor dobbel garasje, dybde hele 7 meter, plass til bod i bakkant.
- Svært god planløsning, 4 soverom pluss hybel og kjellerstue.
- Solrik stor takterrasse over garasje.
- Nøkkelferdig bolig.
- Tomt ferdig med plen, hekker og belegningsstein etc.
- Hvitevarer til begge kjøkken inkludert.
- Ferdig hybel med lyd tiltak, eget sikringsskap og strømmåler i hovedskap.
- Fin utvendig belysning, ledstripe, downligts mm
- Elektrisk port åpner
- Balansert ventilasjon
- Pipe og peis ferdig levert
- Eike trinn i trapp
- Liste frie tak og vinduer
- Sparklet og overmalt listverk rundt dører
- Lavtbyggende stikkontakter
- Flott herdet eik gulv, 1-stav
- Nydelig hoved bad med flis på gulv og vegger, dusj og ferdig levert ovalt badekar
Se tilsvarende bolig:
Vi har en tilsvarende bolig du kan få ta en titt i, ta kontakt for visning: kim Johansen, mobil: 46 95 95 30.
NB: Boligen er ikke lagt ut for salg andre steder enn her enda, så ta kontakt for mer informasjon.

