4638 Kristiansand
4638 Kristiansand
Nøkkelferdig tomannsbolig med mulighet for 85% husbankfinansiering. Prosjektet har fått godkjent husbankfinansiering på kr. 4.461.000,-. Husbankens rente er fra 1. mars 2024 4,458% og tilbys til alle boligkjøpere som ordinær boliglånsfinansiering. Kontakt megler for nærmere info.
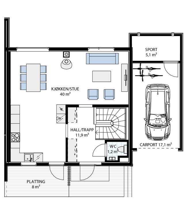
Boligene holder en meget god standard med 3 soverom, stue/kjøkken og lekkert HTH kjøkken og fliselagt bad og parkettgulv. OBOS Block Watne er opptatt av gode nabolag og har derfor også ferdig opparbeidet tomt inkludert i kjøpesum iht utomhusplan som kan fås av megler.
Bygging igangsettes straks boligen er solgt og man kan derfor påregne en kort byggetid dersom det er ønskelig. Er det ønskelig med visning, så stiller vi opp på kort varsel.
Påvirk selv din bolig - skap ditt drømmehjem
Når du kjøper en helt ny bolig, vil du kunne påvirke og tilpasse boligen til deg. Vi er her sammen med deg, og ønsker at denne kundereisen skal bli akkurat slik du så for deg!
Noen endringer vil være kostnadsfritt, og noen endringer vil det bli tillegg på. Vi har utvalgte vareprøver å vise her hos oss, andre må tas direkte med våre samarbeidspartnere på kundemøte etter kontraktsinngåelse.
Alle endringer vil bli oppsummert i en kontrakt før bestilling, og må signeres digitalt eller fysisk.
