4638 Kristiansand
Svært innholdsrike, flotte og romslige rekkehus med integrert garasje.
Moderne og lekre rekkehus med flotte løsninger og riktige materiale- og fargevalg tilpasset siste trender gjør at du her kan flytte inn i en nøkkelferdig bolig. Alt dette kombinert med gode solforhold og sin sentrale beliggenhet gjør at du garantert vil trives.
Boligene ligger sør/øst, og vil i bakkant av boligene få store friområder som ikke skal bebygges som resulterer i mye privatliv og plass til å nyte naturen.
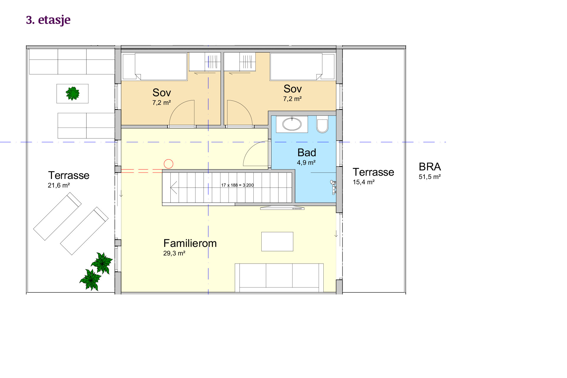
Rekkehuset går over 3 plan og har integrert garasje med direkte adkomst til boligen.
Boligen leveres komplett ihht innholdsliste vedlagt til salgsoppgaven. Det vil være mulig å påvirke planløsning, og man kan også påvirke valg av materialer på gulv og vegger. Som kledning leveres boligene med malmfuru. Dette er så nært man kommer vedlikeholdsfritt, som også gir et veldig stilig utvendig uttrykk!


