4638 Kristiansand
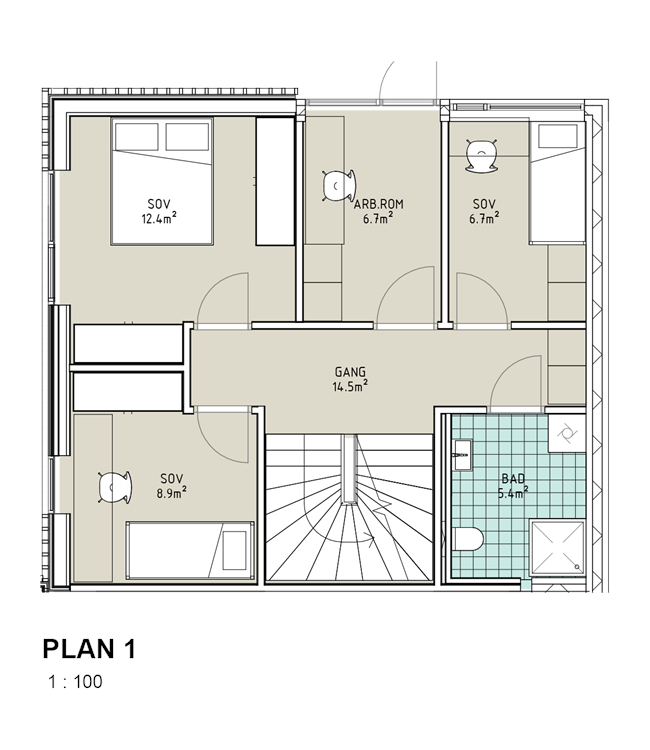
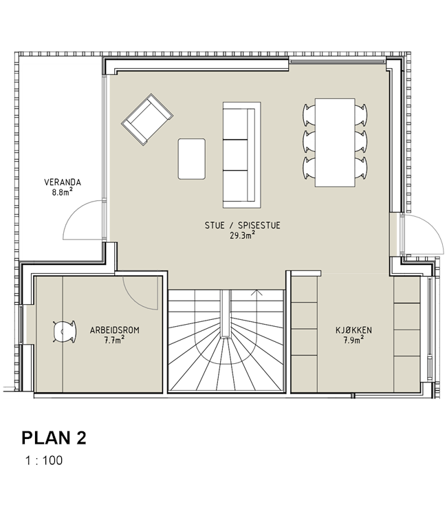
Innholdsrike familiebolig på Drangsvann. Huset ligger øverst i nyere byggefelt - vestvendt og meget solrikt - barnevennlig i blindvei - utsikt- naturskjønne omgivelser og nydelig turterreng i umiddelbar nærhet - leveres nøkkelferdig og med garasje.
Boligene leveres med en gjennomgående god standard:
Vegg/himling: Gips leveres skjøt- og flekksparklet og malt i klasse 2, hvit. Se romskjema.
Gulv: Gulv leveres som 1-stav gulv, lys eik. Fliser i enkelte rom iht. Romskjema.
Listverk: Klassisk hvite trelister rundt dører og langs gulv.
Listefri overgang mot tak og vinduer. Synlige stiftehull etter montasje.
Innerdører: Hvite, slette innerdører leveres med standard dørhåndtak i stål.
Trapp: Trapp leveres hvitmalt i farge klassisk hvit med åpne trinn. Rekke med rundspiler i tre.
Kjøkken: Kjøkken fra Strai Kjøkken til kr. 100.000,- veiledende pris, eks. hvitevarer inkl. frakt, montasje og mva er inkludert. Uttrekkspris er kr. 70.000,-.
Oppvarming: Elektrisk oppvarming med varmekabler iflg. Romskjema. Bolig er klargjort med pipegjennomføring igjennom tak, for fremtidig montering av ildsted. Varmekilder utover dette inngår ikke i leveransen.
Ventilasjon: Balansert ventilasjon med varmegjenvinning.
Se for øvrig byggebeskrivelse vedlagt i prospekt.


