4638 Kristiansand
Velkommen til et unikt boligprosjekt skapt av dyktige arkitekter, Fjeldal og Smedemark. Dette er mer enn bare boliger; det er en opplevelse av særegenhet, en harmoni mellom varierte designelementer og en invitasjon til å skape ditt drømmehjem, både inne og ute.
Arkitektene har nøye kuratert hver detalj for å sikre at ditt hjem reflekterer din personlige stil samtidig som det imøtekommer moderne krav til komfort og bekvemmelighet.
Det er ikke bare et hjem; det er en livsstil. Med BOH som din partner i denne reisen, har du muligheten til å påvirke utviklingen og tilpasse boligen etter dine egne ønsker. Ta kontakt med oss for mer informasjon, utforsk mulighetene og la drømmen om ditt ideelle hjem begynne å ta form.
Sikre deg en plass i dette eksklusive boligprosjektet og bli en del av et fellesskap som setter pris på kvalitet, design og livsglede. Prosjektet ligger som nærmeste nabo til en fantastisk park og med kort vei ned til brygga på Drangsvann. Vi ser frem til å dele mer om dette spennende prosjektet med deg.
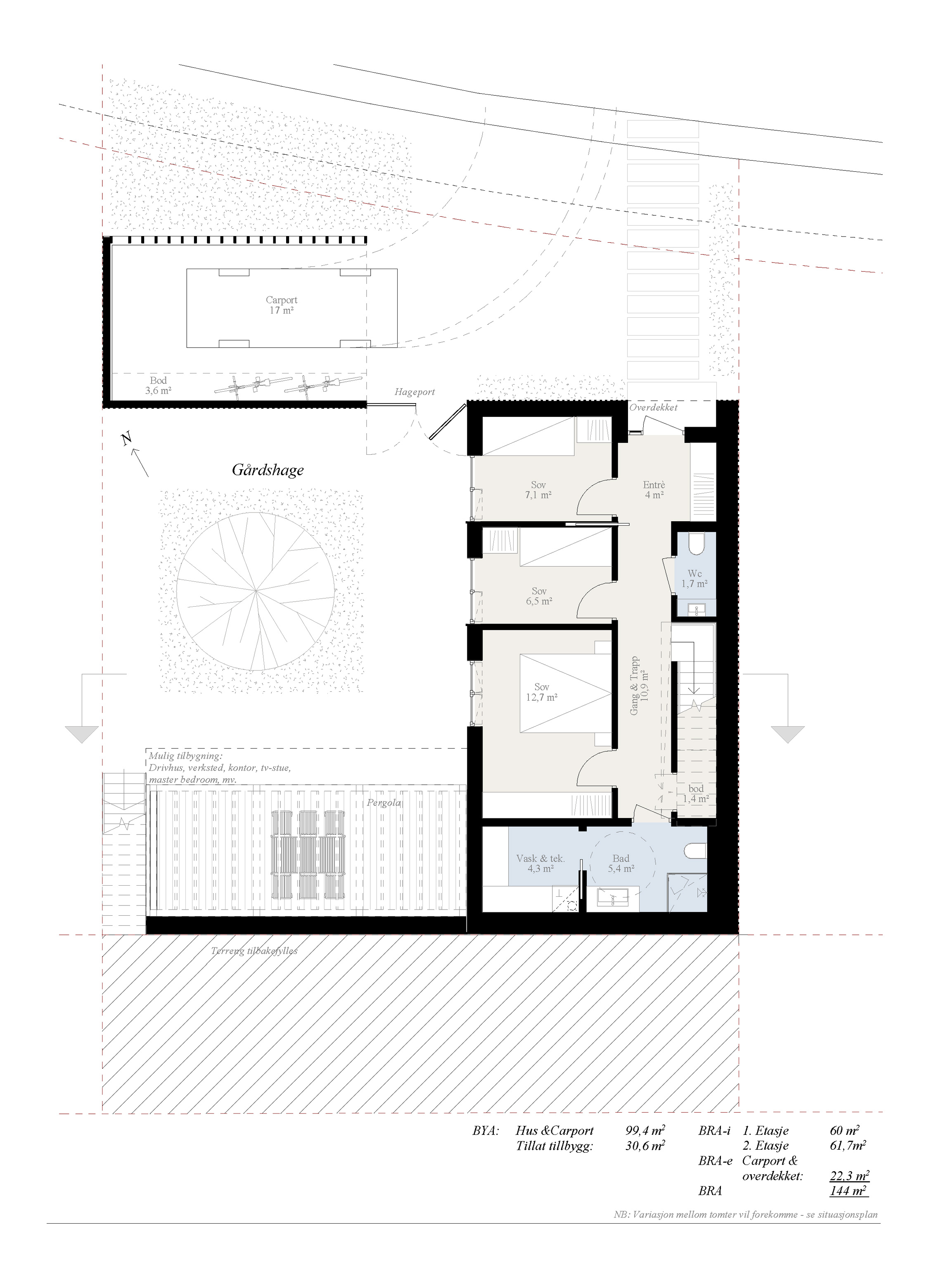
Meget arealeffektive atriumhus med mulighet for utvidelse! Boligene får inn uteområde på en naturlig og innbydende måte! Bolig over to etasjer med svært flott stue/ kjøkken etasje!
Dette sier arkitekt Fjeldal & Smedmark om boligene:
«Atriumshusene er tegnet så de kan bygges ut over tid. Det gir de nye huseierne muligheten til å planlegge for nettopp deres drømmerom på tomten. Om det er et orangeri som utvider sommersesongen, et hobbyrom, eller en helt egen avdeling til hovedsoverommet. Hovedhuset, tilbygget og garasjen omkranser sammen en skjermet hage, som en grønn oase i midten av boligen. Boligens kjøkken-allrom er plassert i boligens andre etasje og forbinder utsikten mot nord og utover den skjermede hagen, med en direkte utgang til bakhagen mot syd/vest.»
Areal:
BRA: 122,8 kvm
Carport og overdekket areal: 22.4 kvm

