4638 Kristiansand
En bolig med helt riktig beliggenhet, planløsning og solforhold. Og ikke minst en helt fantastisk utsikt. Boligen er under bygging og kan leveres ferdig før ferien 2026.
Litt om innhold og leveranser:
4 soverom + hybel | Integrert garasje | Ferdig bygget hagestue | Nydelig utsikt | Ferdig hage
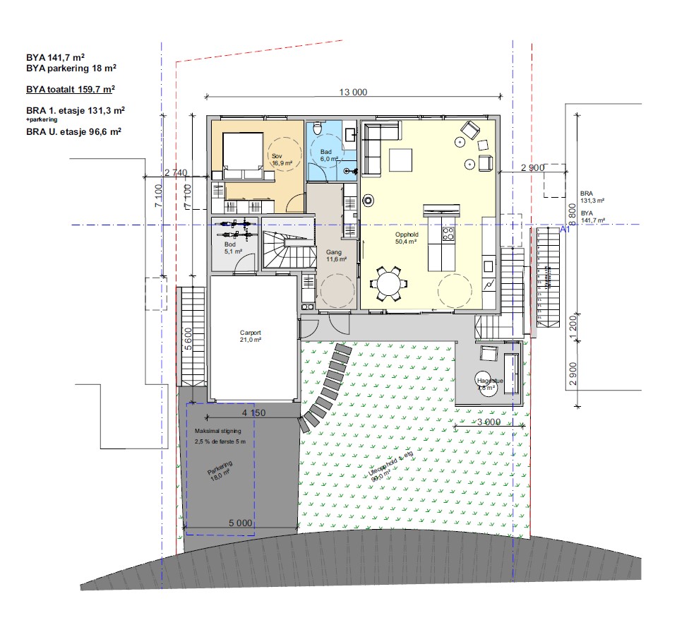
1.etasje
Finner du stor stue/kjøkken løsning og store vinduer ut mot den nydelige utsikten på den ene siden. Og på den andre, dobbel skyvedør ut til solrik hage og hagestue. Videre har vi valgt å legge hoved soverom som er romslig og har plass til garderobe, sammen med bad i denne etasje. I denne etasje finner du også romslig garasje og og bod.
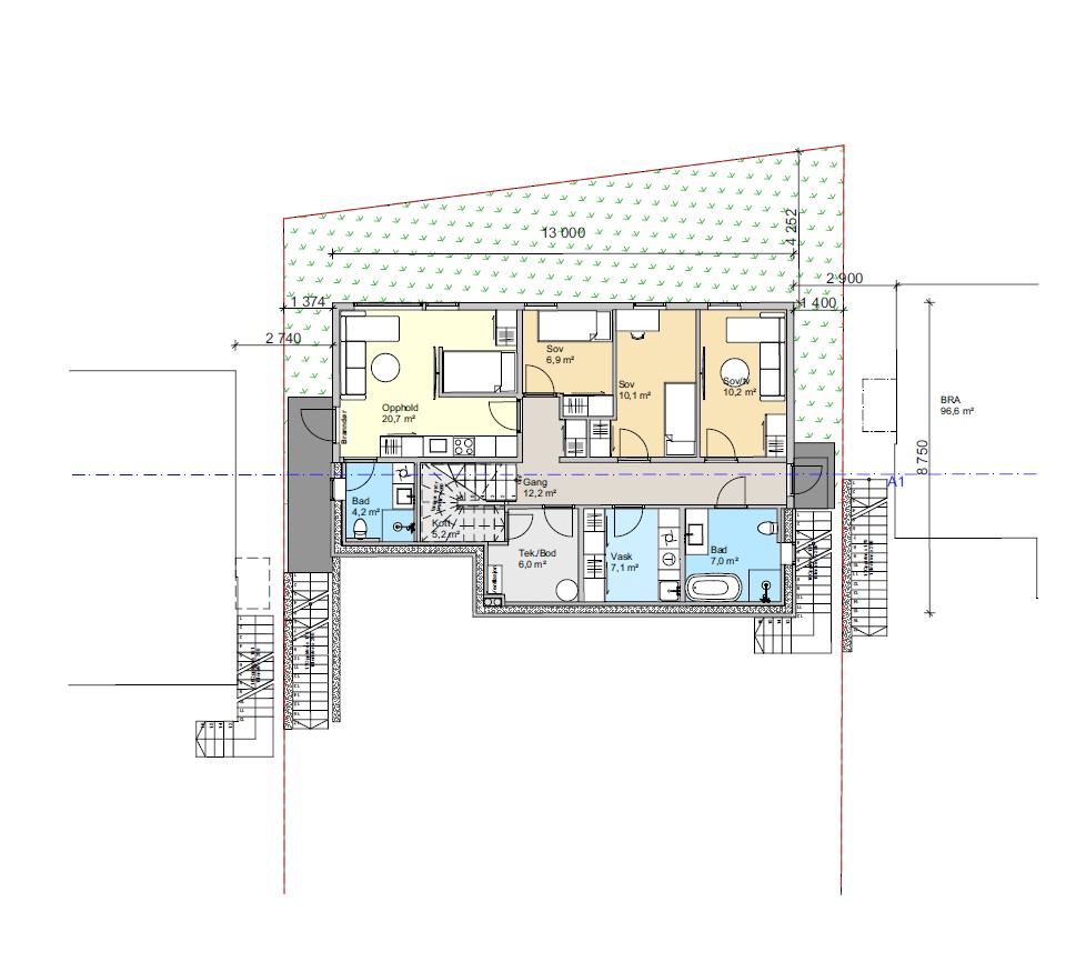
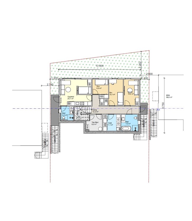
U. etasje
Her er det 3 soverom, stort bad, stort vaskerom og bod. I tillegg bygger vi også en hybel for skattefri inntekt. Du velger selvsagt selv om dette skal være kjellerstue, ekstra soverom eller for utleie. Vi leverer uansett lyd tiltak, kjøkken og bad til hybelen. Hybelen har egen utvendig trapp ned til u. etasje som gjør den veldig adskilt fra hoved bolig ved utleie. Hoved bolig har egen trapp på andre siden for å nå ned til sine uteareal uten å gå forbi hybel.
Leveranser
Vi gjør boligene nøkkelferdig med gode leveranser.
Innvendig
Fint herdet tregulv, god verdi kjøkken, bad og fliser. Downligts i flere rom, liste frie tak og vinduer, kompakt dører, peisovn og mye mer.
Utvendig
Her anlegger vi hage, legger belegningsstein, nødvendige murer etc alt for å få det helt ferdig på tomten. Selve huset leveres med varig og lite vedlikeholdskrevende kledning og aluminiums beslåtte 3-lags vinduer. Se også spennende løsning med hagestue som leveres. Trapper i støpt betong begge sider av bolig for enkel tilgang til hage mot nord-øst.
Ingen betaling før ferdigstillelse
Her kan vi tilby deg å kjøpe nå, betale når du flytter inn! Heller ingen prisstigning. En skikkelig god avtale som banken din liker å høre.
Med god planlegging kan du sitte i egen bolig og få med deg prisstigning der, flytte rett over i denne nye og først da betale for den.
Enkelt.
Trygg reise - egen byggeleder og erfarne leverandører
Kjøper du nå i tidlig byggeprosess, blir du gitt størst mulighet for tilpasning. Egne valg på trapp, kjøkken, bad, gulver, farger etc. Alt ligger til rette for at du skal få det slik du ønsker.
Samtlige, både selger, prosjektledere og mange av våre snekkere har vært i dette firma over 10år, i tillegg til tidligere erfaring. Gode rutiner og stødige leverandører valgt over tid, vil gi deg en fin bolig reise. Bygge nytt hus er gøy, bygg med oss!
Ta kontakt for visning eller bare en bolig prat
Vi har fine kontorer i Søgne, en god kaffe maskin og er alltid klar for en prat. Ønsker du ut på tomten og kanskje se et hus vi har bygget ferdig?
Klart vi fikser - ta bare kontakt!
Selger her er Kim Johansen, tilgjengelig på mobil 46 95 95 30.

