4638 Kristiansand
4638 Kristiansand
Enebolig i kjede med praktikantdel - bygging i gang - overtagelse etter avtale med megler
Her kan du sikre deg en innholdsrik bolig på Drangsvann. Denne boligen vil ha god standard og gjennomtenkte løsninger, og denne kommer også med praktikantdel som kan leies ut ved behov. Her vil du bo i naturskjønne omgivelser med fantastisk utsikt, samtidig som du har kort vei til alt du trenger i hverdagen.
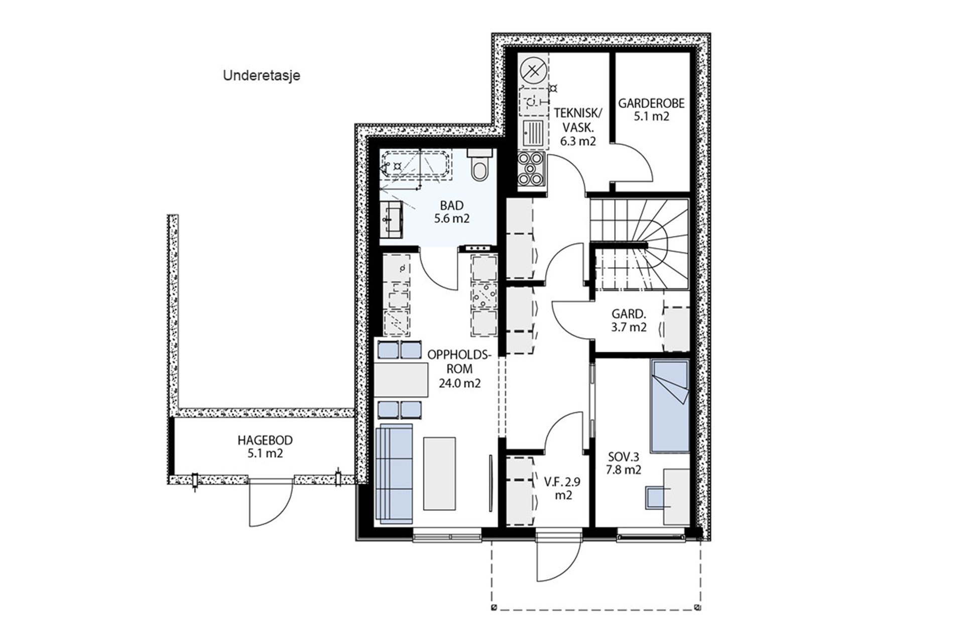
Boligen går over tre plan, og vil ha en praktikantdel i underetasjen.
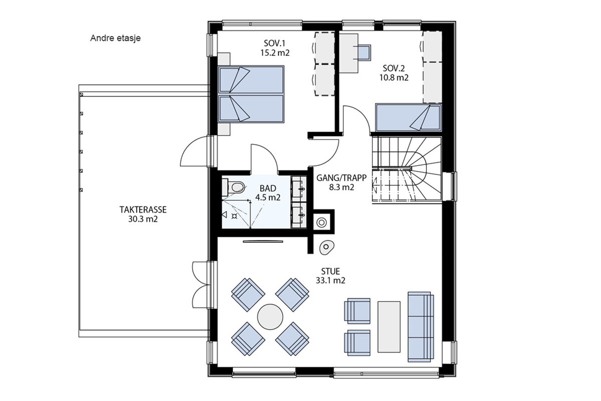
Hoveddel av bolig består av entré, 3 soverom, to bad, separat vaskerom, kjøkken, to stuer og gode oppbevarings muligheter. Du får markterrasse og veranda i hovedetasjen, og en fantastisk usjenert takterrasse i 2. etasje. Boligene vil også ha carport med sportsbod, redskapsbod og en ferdig opparbeidet hage. Carporten kan om gjøres til en lukket garasje dersom det er ønskelig etter nærmere avtale.
Praktikantdel i underetasjen vil ha en avdeling med eget vindfang, soverom, garderobe, oppholdsrom med kjøkken og separat bad.
Standard
Boligen leveres nøkkelferdig og komplett ferdig opparbeidet og lettstelt uteareal.
Det leveres innholdsrikt kjøkken fra HTH med integrerte hvitevarer fra Siemens.
Baderomsinnredningen leveres av HTH med skuffeseksjon, nedfelt vask og speil med innfelt lys. Toalettet er vegghengt og dusjhjørnet leveres i herdet glass. Badet har varme i gulvet og både gulv og vegger er flislagt med delikate fliser.
Alle gulv i tørre rom leveres med 15 mm parkett i hvitlasert eik. Fliser i bad.
Boligene leveres bla. også med utvendig belysning, balansert ventilasjon med varme gjenvinning, utvendig tappekran og ferdig opparbeidet uteareal iht. utomhusplan. Det leveres vedovn og stålpipe.
Kontakt megler for visning!


